×
 
 
 
 

10176 NW Field Flower Trail, Home For Sale

10176 NW Field Flower Trail, Port St Lucie, FL 34987

Price: $624,995 | 2,873 s.f. | 2 Beds | 2½ Baths

 

Property Information 10176 NW Field Flower Trail

Listing Price: $624,995
Price per Square Foot: $263.16/s.f.
Beds: 2
Baths:
Interior Space: 2,375 s.f. (220.6 m²)
Total Size: 2,873 s.f. (266.9 m²)
Lot Size: 8,488 s.f.
Taxes (2025): $3,985
Reference: R11141912
 

Your Contact

 
 
Send an E-mail

Office: (305) 726-0100
Mobile: (305) 726-0100

Have Questions?
 

Description of 10176 NW Field Flower Trail

Description of Home

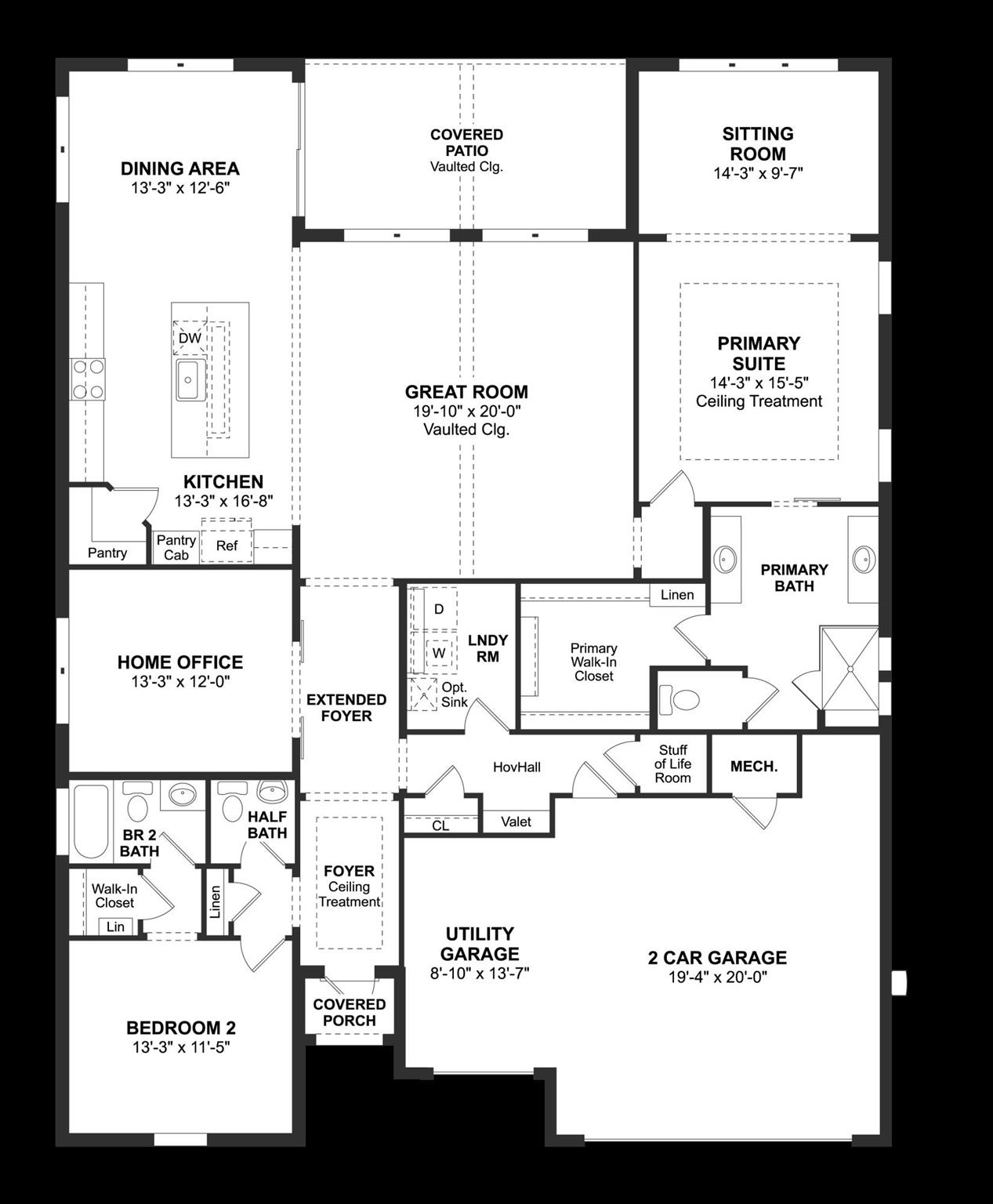
tunning Morse Floorplan with Preserve ViewsThis beautifully designed Morse offers exceptional comfort, style, and function. Step inside to an inviting home office conveniently located near the entryway. The expansive great room features a vaulted ceiling and floods with natural light, enhanced by a dramatic 16' multi-slide door that opens seamlessly to a spacious covered patio overlooking the preserve.A bright dining area also provides patio access, perfect for indoor-outdoor entertaining. The gourmet kitchen boasts a large quartz island, ample workspace, and modern finishes ideal for cooking and gathering.The primary suite impresses with its own private sitting room, providing a peaceful retreat. The luxurious primary bath showcases dual freestanding vanities and premium

10176 NW Field Flower Trail Map and Directions

 

  Subscribe To Our Mailing List

Thank you! You should receive a confirmation email shortly.
 

 

The MLS data provided for the property above (MLS#R11141912) is provided courtesy of K Hovnanian Florida Realty. Source: Southeast Florida MLS. Data updated 11/24/2025. Information is deemed reliable but not guaranteed. Copyright © 2025. The listing data on this page comes in part from the Internet Data Exchange (IDX), a collaboration between the following REALTOR(R) associations in the South Florida Multiple Listing Service (MLS): Miami Realtor Association, Realtor Association of Greater Ft. Lauderdale and the South Broward Board of Realtors. All rights reserved. The information being provided is for consumers' personal, non-commercial use and may not be used for any purpose other than to identify prospective properties consumers may be interested in purchasing. Data is believed to be accurate, but is not warranted. Use of search facilities of data on the site, other than a consumer looking to purchase real estate, is prohibited. Federal law prohibits discrimination on the basis of race, color, religion, sex, handicap, familial status or national origin in the sale, rental or financing of housing.
 

Online Now

Have a Question? Live Chat

Condo & Home Directory

 
 

Brown Harris Stevens recommends that buyers, sellers and renters of real estate consult appropriate professionals for legal and other specialized advice.

Information presented on this website is believed to be accurate but is not warranted. Oral representations should not be considered valid. Information presented on this site (and in generated reports) may contain listings from both Brown Harris Stevens and other brokers who cooperate with Brown Harris Stevens. The content on this webpage (including drawings, photos, text and other materials) may have been provided by developers, third parties or others, and may have been extracted from a developer's marketing materials. Brown Harris Stevens does not warrant the accuracy of such information. You should consult your Purchase Agreement, Contract and Condominium Documents for accurate information. Brown Harris Stevens is an independent broker and has no developer affiliation, unless otherwise noted.

Contact Us

Email Address
First Name
Last Name