×
 
 
 
 

13477 SW Alejandro Court, Home For Sale

13477 SW Alejandro Court, Port St Lucie, FL 34987

Price: $615,029 | 0 s.f. | 3 Beds | 3 Baths

 

Property Information 13477 SW Alejandro Court

Listing Price: $615,029
Price per Square Foot:
Beds: 3
Baths: 3
Interior Space: 0 s.f. (0.0 m²)
Total Size: 0 s.f. (0.0 m²)
Lot Size: 7,280 s.f.
Taxes (2025): $0
Reference: A12007134
 

Your Contact

 
 
Send an E-mail

Office: (305) 726-0100
Mobile: (305) 726-0100

Have Questions?
 

Description of 13477 SW Alejandro Court

Description of Home

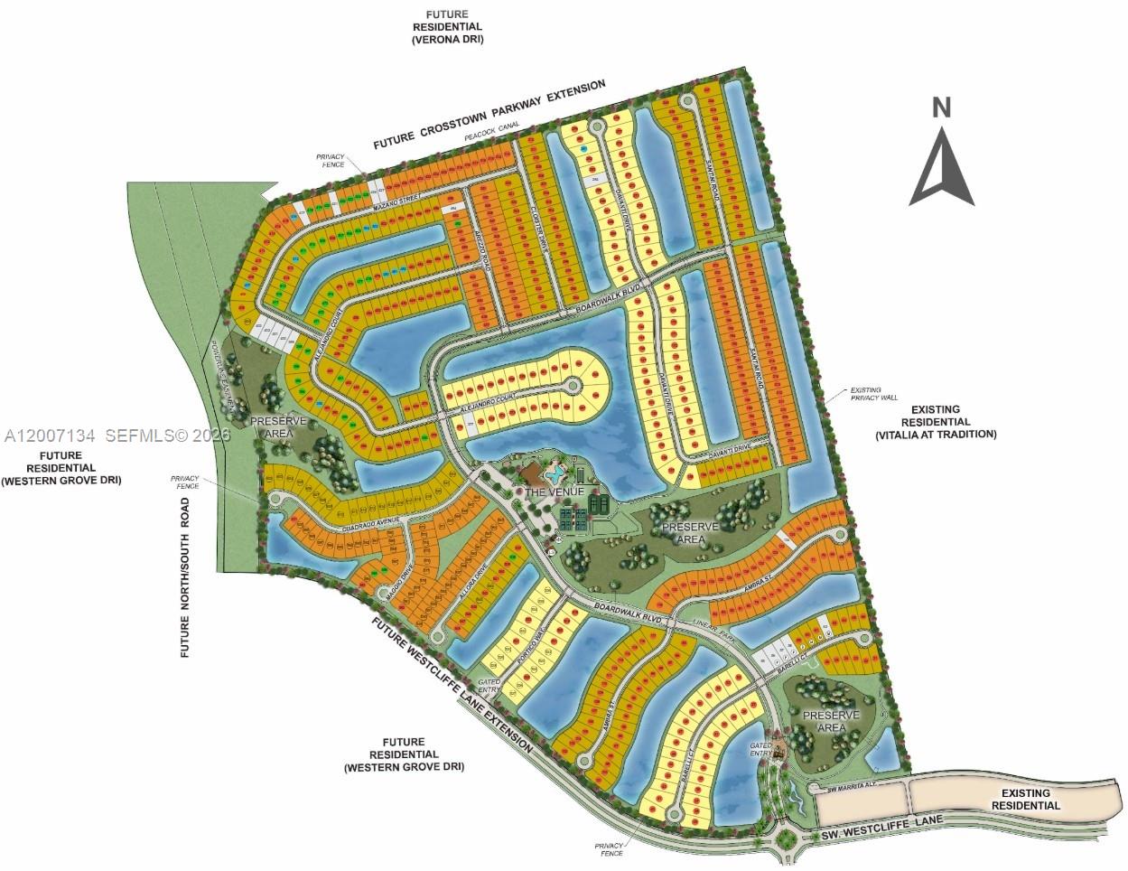
What's Special: Close to Amenity | Water View. New Construction - May Completion! Built by America's Most Trusted Home Builder. Welcome to the Lazio at 13477 SW Alejandro Court in Esplanade at Tradition! This charming new home welcomes you with a thoughtful layout that places a secondary bedroom, full bathroom, and dedicated study just off the foyer, while another secondary bedroom with a private bath, and laundry room sit opposite for added privacy. The dining area flows naturally into the great room, gourmet kitchen, and casual dining area. Sliding glass doors lead to the covered lanai, where you can relax and take in peaceful water views from the backyard. Tucked at the back of the home, the primary suite features a lovely bay window, a spa-inspired en-suite bath, and a spacious walk-in closet designed with you in mind. Whole house impact windows add comfort, confidence, and everyday ease throughout the home. Additional Highlights Include: Gourmet kitchen, casual dining extension, study in place of flex, bay window at primary suite, tandem garage, extended lanai, tray ceiling pkg, 10' ceilings, 8' interior doors, and pre-plumb for future laundry tub. Photos are for representative purposes only. MLS#A12007134 - Discover Esplanade at Tradition, a vibrant 55+ community with resort-style amenities, pool, tropical beach, and cabanas. Play pickleball, stroll the lakefront, enjoy café treats, and visit the bark park. Live every day like vacation!

13477 SW Alejandro Court Map and Directions

 

  Subscribe To Our Mailing List

Thank you! You should receive a confirmation email shortly.
 

 

The MLS data provided for the property above (MLS#A12007134) is provided courtesy of Taylor Morrison Realty of FL. Source: Southeast Florida MLS. Data updated 4/25/2026. Information is deemed reliable but not guaranteed. Copyright © 2026. The listing data on this page comes in part from the Internet Data Exchange (IDX), a collaboration between the following REALTOR(R) associations in the South Florida Multiple Listing Service (MLS): Miami Realtor Association, Realtor Association of Greater Ft. Lauderdale and the South Broward Board of Realtors. All rights reserved. The information being provided is for consumers' personal, non-commercial use and may not be used for any purpose other than to identify prospective properties consumers may be interested in purchasing. Data is believed to be accurate, but is not warranted. Use of search facilities of data on the site, other than a consumer looking to purchase real estate, is prohibited. Federal law prohibits discrimination on the basis of race, color, religion, sex, handicap, familial status or national origin in the sale, rental or financing of housing.
 

Online Now

Have a Question? Live Chat

Condo & Home Directory

 
 

Brown Harris Stevens recommends that buyers, sellers and renters of real estate consult appropriate professionals for legal and other specialized advice.

Information presented on this website is believed to be accurate but is not warranted. Oral representations should not be considered valid. Information presented on this site (and in generated reports) may contain listings from both Brown Harris Stevens and other brokers who cooperate with Brown Harris Stevens. The content on this webpage (including drawings, photos, text and other materials) may have been provided by developers, third parties or others, and may have been extracted from a developer's marketing materials. Brown Harris Stevens does not warrant the accuracy of such information. You should consult your Purchase Agreement, Contract and Condominium Documents for accurate information. Brown Harris Stevens is an independent broker and has no developer affiliation, unless otherwise noted.

Contact Us

Email Address
First Name
Last Name