×
 
 
 
 

420 NE 62nd St, Apt Home For Sale

420 NE 62nd St, Miami, FL 33138

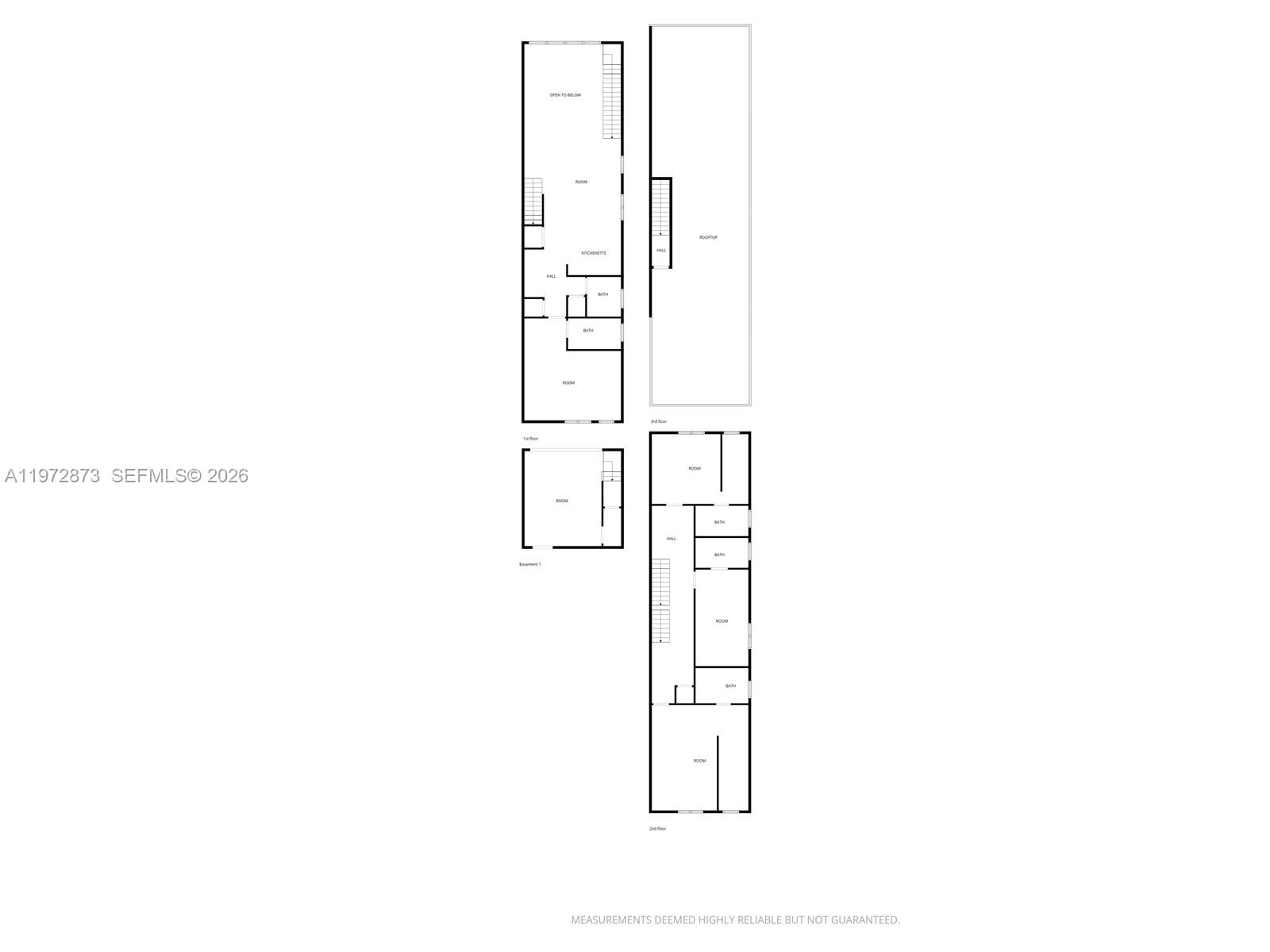
Price: $1,999,999 | 2,786 s.f. | 4 Beds | 4½ Baths

 

Property Information 420 NE 62nd St

Listing Price: $1,999,999
Price per Square Foot: $717.87/s.f.
Beds: 4
Baths:
Interior Space: 2,786 s.f. (258.8 m²)
Total Size: 2,786 s.f. (258.8 m²)
Monthly Maintenance Fee: $0
Taxes (2026): $0
Reference: A11972873
 

Your Contact

 
 
Send an E-mail

Office: (305) 666-1800
Mobile: (305) 666-1800

Have Questions?
 

Description of 420 NE 62nd St

Description of Unit

Welcome to The MiMo 62nd Sky Collection, two exclusive residences in the heart of the MiMo District. This freestanding luxury property features two side-by-side, three-story homes each with a private pool & rooftop terrace. Each residence offers 4 bedrooms & 4.5 bathrooms, seamlessly blending the scale of a single-family home with the sophistication of a modern, design-forward build. The first level is dedicated to entertaining, highlighted by 22-foot ceilings, an expansive lounge & direct access to a private ground-floor pool. The second level unveils an open-concept living & dining space centered around a chef’s kitchen featuring custom European cabinetry, an oversized eat-in island, and Fisher & Paykel appliances. A seamless blend of light and scale defines the interiors, with floor-to-ceiling windows and soaring ceilings throughout, complemented by bespoke finishes and custom-designed doors that elevate every space. The third level is anchored by the primary suite thoughtfully appointed with a spa-inspired bath featuring a two-person shower, soaking tub and an expansive custom walk-in closet. Two additional bedrooms, each with en-suite baths and tailored closet systems, complete the upper level. The rooftop terraces offer the ultimate in outdoor living, designed for customization with endless upgrade options. The residences share a secured entry lobby & a private garage with direct access to each home. Ready for delivery, schedule your tour today.

420 NE 62nd St Map and Directions

 

  Subscribe To Our Mailing List

Thank you! You should receive a confirmation email shortly.
 

 

The MLS data provided for the property above (MLS#A11972873) is provided courtesy of ACC Realty, Inc.. Source: Southeast Florida MLS. Data updated 3/29/2026. Information is deemed reliable but not guaranteed. Copyright © 2026. The listing data on this page comes in part from the Internet Data Exchange (IDX), a collaboration between the following REALTOR(R) associations in the South Florida Multiple Listing Service (MLS): Miami Realtor Association, Realtor Association of Greater Ft. Lauderdale and the South Broward Board of Realtors. All rights reserved. The information being provided is for consumers' personal, non-commercial use and may not be used for any purpose other than to identify prospective properties consumers may be interested in purchasing. Data is believed to be accurate, but is not warranted. Use of search facilities of data on the site, other than a consumer looking to purchase real estate, is prohibited. Federal law prohibits discrimination on the basis of race, color, religion, sex, handicap, familial status or national origin in the sale, rental or financing of housing.
 

Online Now

Have a Question? Live Chat

Condo & Home Directory

 
 

Brown Harris Stevens recommends that buyers, sellers and renters of real estate consult appropriate professionals for legal and other specialized advice.

Information presented on this website is believed to be accurate but is not warranted. Oral representations should not be considered valid. Information presented on this site (and in generated reports) may contain listings from both Brown Harris Stevens and other brokers who cooperate with Brown Harris Stevens. The content on this webpage (including drawings, photos, text and other materials) may have been provided by developers, third parties or others, and may have been extracted from a developer's marketing materials. Brown Harris Stevens does not warrant the accuracy of such information. You should consult your Purchase Agreement, Contract and Condominium Documents for accurate information. Brown Harris Stevens is an independent broker and has no developer affiliation, unless otherwise noted.

Contact Us

Email Address
First Name
Last Name