×
 
 
 
 

1894 Aspen Ln, Home For Sale

1894 Aspen Ln, Weston, FL 33327

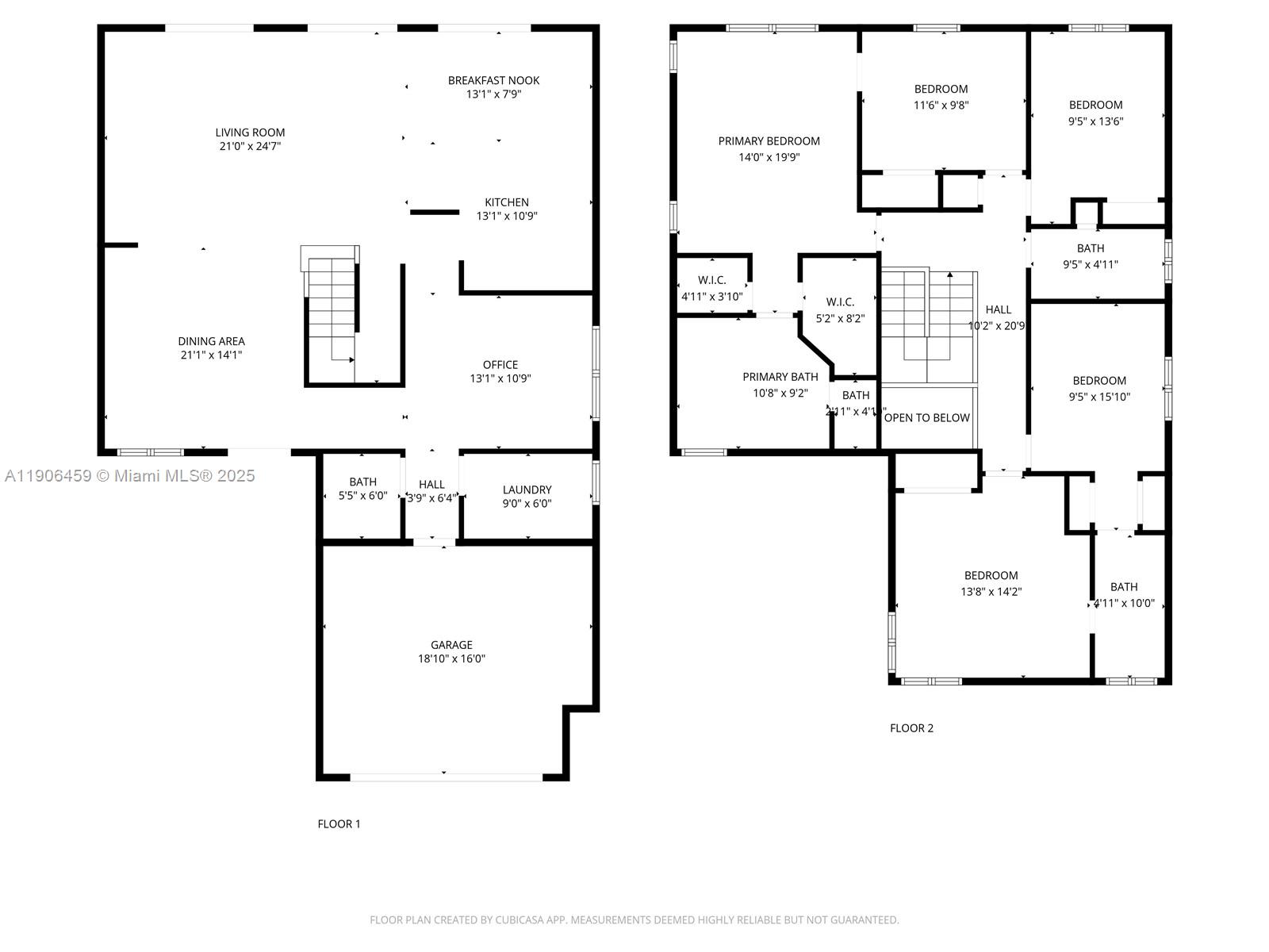
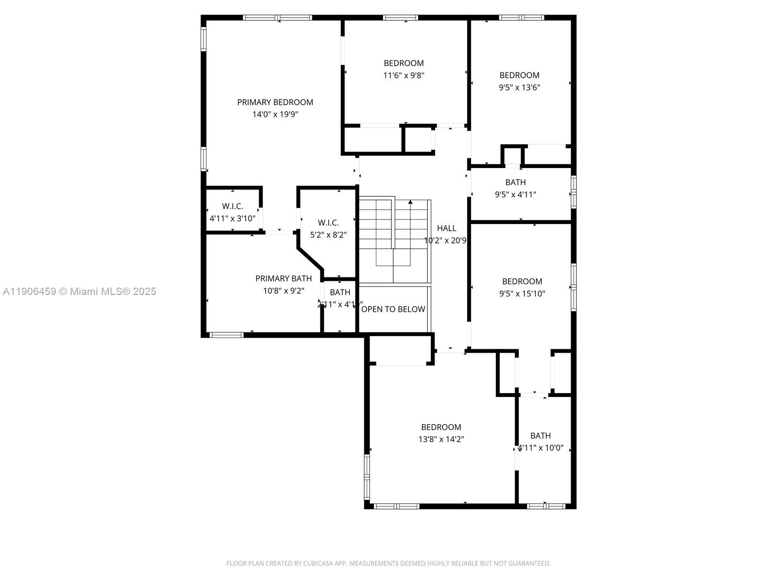
Price: $1,275,000 | 3,344 s.f. | 5 Beds | 3½ Baths

 

Property Information 1894 Aspen Ln

Listing Price: $1,275,000
Price per Square Foot: $477.17/s.f.
Beds: 5
Baths:
Interior Space: 2,672 s.f. (248.2 m²)
Total Size: 3,344 s.f. (310.7 m²)
Lot Size: 11,129 s.f.
Taxes (2024): $10,089
Reference: A11906459
 

Your Contact

 
 
Send an E-mail

Office: (305) 726-0100
Mobile: (305) 726-0100

Have Questions?
 

Description of 1894 Aspen Ln

Description of Home

Come for the home, stay for the sunsets! Fully upgraded tropical retreat with heated/jetted saltwater pool, travertine deck, screened patio, and custom pergola with summer kitchen. Enjoy stunning canal sunsets and total privacy—no rear neighbors! New A/C (2025), water heater (2024), Cat 5 Hurricane Impact windows/doors, plantation shutters. Built-in garage storage system. Kitchen and all 4 baths remodeled, 24x24 Porcelanosa floors, laminate upstairs, crown molding. Expanded driveway fits 3 vehicles. Lush yard with mature fruit trees (mango, avocado, soursop, lime, banana, orange, coconut), herb garden, and privacy hedges. Guard-gated community with resort-style pools; Olympic lap pool, pickleball, mini golf, café, and A+ schools. A rare blend of elegance, comfort, and everyday paradise.

1894 Aspen Ln Map and Directions

 

  Subscribe To Our Mailing List

Thank you! You should receive a confirmation email shortly.
 

 

The MLS data provided for the property above (MLS#A11906459) is provided courtesy of FGI Realty. Source: Southeast Florida MLS. Data updated 12/7/2025. Information is deemed reliable but not guaranteed. Copyright © 2025. The listing data on this page comes in part from the Internet Data Exchange (IDX), a collaboration between the following REALTOR(R) associations in the South Florida Multiple Listing Service (MLS): Miami Realtor Association, Realtor Association of Greater Ft. Lauderdale and the South Broward Board of Realtors. All rights reserved. The information being provided is for consumers' personal, non-commercial use and may not be used for any purpose other than to identify prospective properties consumers may be interested in purchasing. Data is believed to be accurate, but is not warranted. Use of search facilities of data on the site, other than a consumer looking to purchase real estate, is prohibited. Federal law prohibits discrimination on the basis of race, color, religion, sex, handicap, familial status or national origin in the sale, rental or financing of housing.
 

Online Now

Have a Question? Live Chat

Condo & Home Directory

 
 

Brown Harris Stevens recommends that buyers, sellers and renters of real estate consult appropriate professionals for legal and other specialized advice.

Information presented on this website is believed to be accurate but is not warranted. Oral representations should not be considered valid. Information presented on this site (and in generated reports) may contain listings from both Brown Harris Stevens and other brokers who cooperate with Brown Harris Stevens. The content on this webpage (including drawings, photos, text and other materials) may have been provided by developers, third parties or others, and may have been extracted from a developer's marketing materials. Brown Harris Stevens does not warrant the accuracy of such information. You should consult your Purchase Agreement, Contract and Condominium Documents for accurate information. Brown Harris Stevens is an independent broker and has no developer affiliation, unless otherwise noted.

Contact Us

Email Address
First Name
Last Name